MẪU NHÀ LẮP GHÉP 100M2 3 PHÒNG NGỦ

Liên hệ
  • Miễn phí tư vấn và thiết kế Miễn phí tư vấn và thiết kế
  • Bảo hành 20 năm kết cấu và chống gỉ. Bảo hành 20 năm kết cấu và chống gỉ.
  • Cam kết chính hãng 100% Cam kết chính hãng 100%

MẪU NHÀ LẮP GHÉP 100M2 3 PHÒNG NGỦ 

Với nhiều chủ nhà chuẩn bị xây nhà, nỗi lo lớn nhất thường là:

  • ❌ Thi công kéo dài

  • ❌ Chi phí phát sinh

  • ❌ Nhà nặng – kết cấu cứng – khó cải tạo

Chính vì vậy, MẪU NHÀ LẮP GHÉP 100M2 3 PHÒNG NGỦ ra đời như một giải pháp xây dựng thế hệ mới, sử dụng KHUNG THÉP LẮP GHÉP G550 MẠ HỢP KIM NHÔM KẼM, Vật liệu ốp ngoại thất, nội thất cùng với lớp foam cách âm cách nhiệt, liên kết bằng VÍT – KHÔNG HÀN, mang lại sự NHANH – BỀN – CHÍNH XÁC – KINH TẾ.

👉 Đây không chỉ là xây một căn nhà, mà là xây tư duy đúng ngay từ đầu.

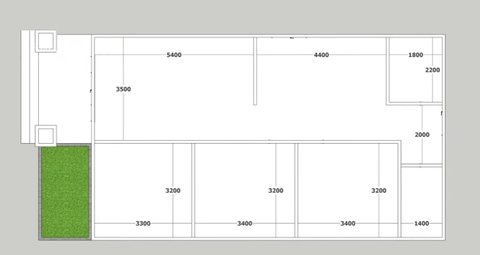
BỐ TRÍ CÔNG NĂNG NHÀ LẮP GHÉP 100M2 3 PHÒNG NGỦ 

Dựa trên mặt bằng công năng thực tế, ngôi nhà được tổ chức theo trục dọc thông minh, tách rõ khu sinh hoạt và khu nghỉ ngơi.

Mặt bằng bố trí phòng nhà lắp ghép 100m2

🛏️ 03 PHÒNG NGỦ BỐ TRÍ LIỀN MẠCH – RIÊNG TƯ & THOÁNG

  • 03 phòng ngủ tiêu chuẩn có cửa sổ lớn lấy sáng tự nhiên

  • Mỗi phòng đều đủ không gian:

    • Giường 

    • Tủ đồ

    • Bàn làm việc / học tập

👉 Bố trí này rất phù hợp cho gia đình 4–6 người, đảm bảo riêng tư nhưng vẫn kết nối.

KHU VỆ SINH – KỸ THUẬT GỌN GÀNG

  • 01 WC chung đặt cuối trục giao thông

  • Áp sát tường kỹ thuật giúp:

    • Giảm chi phí thi công

    • Dễ bảo trì

    • Phù hợp nhà lắp ghép lâu dài

KHU BẾP + BÀN ĂN – TRÁI TIM NGÔI NHÀ

  • Bếp chữ L áp tường, tối ưu diện tích

  • Bàn ăn 4–6 người đặt giữa nhà

  • Không gian mở, thông thoáng, kết nối trực tiếp phòng khách

👉 Đây là khu vực sinh hoạt chung, rất “ấm” cho gia đình Việt.

PHÒNG KHÁCH PHÍA TRƯỚC – ĐÓN SÁNG, ĐÓN GIÓ

  • Phòng khách đặt ngay mặt tiền

  • Cửa lớn + cửa sổ giúp:

    •  Ánh sáng tự nhiên

    • Lưu thông không khí

  • Không gian không vướng cột nhờ KHUNG THÉP G550 NHỊP VƯỢT

👉 Dễ decor – dễ thay đổi phong cách nội thất theo thời gian.

VẬT LIỆU LÀM NHÀ LẮP GHÉP 100M2 – GIÁ TRỊ NẰM Ở KẾT CẤU

Yếu tố cốt lõi tạo nên chất lượng ngôi nhà chính là:

KHUNG THÉP LẮP GHÉP G550 MẠ HỢP KIM NHÔM KẼM

  • Cường độ cao

  • Chống gỉ sét vượt trội

  • Tuổi thọ trên 30 năm

  • Lắp ghép bằng vít, KHÔNG HÀN – KHÔNG RỈ MỐI HÀN

Kết hợp:

  • Tấm ngoại thất: Tấm bêtông nhẹ/ tấm cemboad / panel cách nhiệt...

  • Vật liệu ốp nội thất: Tấm than tre/ Nano/ Cemboad...

  • Giữa tường được phun lớp foam cách âm cách nhiệt chống cháy.
  • Mái ngói hoặc mái tôn thẩm mỹ

👉 Nhẹ hơn – bền hơn – an toàn hơn nhà xây truyền thống.

CHI PHÍ NHÀ LẮP GHÉP 100M2 3 PHÒNG NGỦ 1 PHÒNG KHÁCH

Chi phí tham khảo:

  • Chi phí Từ 5 – 8 triệu/m² tùy vật liệu ốp

  • Thời gian thi công: 20-30 ngày

Quan trọng nhất:

  • ✅ Báo giá rõ ràng

  • ✅ Không phát sinh

  • ✅ Kiểm soát ngân sách ngay từ đầu.

Với mẫu nhà này có thể bố trí phòng thờ liền phòng khách hoặc bố trí phòng phòng thờ riêng

QUY TRÌNH THI CÔNG NHÀ LẮP GHÉP TRỌN GÓI

  1. Khảo sát – tư vấn theo nhu cầu gia đình

  2. Thiết kế mặt bằng & kết cấu chuẩn xác

  3. Sản xuất khung thép tại nhà máy

  4. Lắp dựng nhanh tại công trình

  5. Hoàn thiện – bàn giao – bảo hành

👉 Mọi thứ gọn – nhanh – minh bạch.

Nếu bạn đang:

  • Chuẩn bị xây nhà mới, cải tạo, nâng tầng

  • Muốn nhà bền – đẹp – ít rủi ro

📞 Hãy liên hệ với chúng tôi, Nhận TƯ VẤN MIỄN PHÍ 1:1 theo diện tích & ngân sách của bạn

Công ty cổ phần sản xuất và thương mại Quang Khôi

ĐC: Lô G10, Cụm CN Minh Phương, Nguyệt Đức, Phú Thọ.
ĐT: 0982.525.288

CN Quảng Ninh: Số 17, Vũ Văn Hiếu, Hà Tu, Quảng Ninh.

CN Tây Nguyên: Số 18, Phan Bội Châu, Chư Sê, Gia Lai.

Messenger